%@LANGUAGE="JAVASCRIPT" CODEPAGE="1252"%>
NOR: SOCU0611881A
Le ministre de l'économie, des finances et de l'industrie, le ministre de l'emploi, de la cohésion sociale et du logement et le ministre délégué à l'industrie,
Vu la directive 2002/91/CE du Parlement européen et du Conseil en date du 16 décembre 2002 sur la performance énergétique des bâtiments ;
Vu le code de la construction et de l'habitation, notamment ses articles R. 134-1 à R. 134-5,
Arrêtent :
Article 1
Les dispositions du présent arrêté sont prises pour l'application des dispositions des articles R. 134-1 à R. 134-5 du code de la construction et de l'habitation, à l'exception des départements d'outre-mer.
Au sens du présent arrêté :
- les lots considérés sont les locaux pour lesquels de l'énergie est utilisée pour réguler la température intérieure ;
- par énergie renouvelable produite par les équipements installés à demeure, on entend la fourniture d'énergie renouvelable par un équipement situé dans le bâtiment, sur la parcelle ou à proximité immédiate ;
- pour le cas du refroidissement, les émissions de gaz à effet de serre considérées ne prennent pas en compte les émissions de fluides frigorigènes.
Chapitre Ier
Diagnostic de performance énergétique
pour les maisons individuelles
Article 2
Les dispositions du présent chapitre s'appliquent aux ventes de maisons individuelles comportant au plus deux logements, dans lesquelles de l'énergie est utilisée pour réguler la température intérieure.
Article 3
Le diagnostic de performance énergétique comporte les éléments suivants :
1. L'identification de la maison et sa surface habitable, établies selon l'annexe 1 du présent arrêté ;
2. Un descriptif des principales caractéristiques thermiques et géométriques de la maison et de ses équipements énergétiques, y compris les équipements utilisant des énergies d'origine renouvelable produites par les équipements installés à demeure ; ce descriptif est établi selon l'annexe 1.1 du présent arrêté ;
3 a) Par type d'énergie, les quantités annuelles d'énergies finales nécessaires au chauffage, à la production d'eau chaude sanitaire et au refroidissement, calculées suivant une utilisation standardisée de la maison, exprimées en kilowattheures ; le calcul est réalisé au moyen d'une méthode conventionnelle satisfaisant les dispositions de l'arrêté relatif aux méthodes et procédures applicables au diagnostic de performance énergétique pour les bâtiments proposés à la vente ;
Par quantité annuelle d'énergie finale nécessaire au chauffage, on entend les besoins en énergie liés aux déperditions thermiques par l'enveloppe du bâtiment, les pertes des systèmes thermiques, les déperditions thermiques par renouvellement d'air, diminués des apports internes de la maison et des apports solaires.
Pour les maisons individuelles construites avant le 1er janvier 1948, les quantités annuelles d'énergie finales visées à l'alinéa précédent peuvent ne pas être calculées suivant une méthode conventionnelle telle qu'indiquée au premier alinéa du 3 a du présent article, mais être définies par la moyenne des consommations réelles sur les trois dernières années précédant le diagnostic ou, à défaut, sur la durée effective de fourniture d'eau chaude sanitaire ou de chauffage. Les facteurs de conversion en kilowattheures des énergies relevées sont définis en annexe 3.1.
3 b) Les quantités annuelles d'énergie primaire par type de consommation résultant des quantités mentionnées au 3 a, calculées selon les dispositions de l'annexe 3.2 du présent arrêté ;
3 c) Une évaluation en euros des montants annuels des frais de consommation inhérents aux quantités d'énergies finales mentionnées en 3 a, calculée suivant les dispositions de l'annexe 5 du présent arrêté, accompagnée de la date indiquée en 10 ;
3 d) Un classement de la quantité totale d'énergie primaire pour le chauffage, l'eau chaude sanitaire et le refroidissement des locaux de la maison selon une échelle de référence notée de A à G indiquée en annexe 3.2 du présent arrêté en fonction de la valeur du rapport de cette quantité à la surface habitable de la maison ;
4 a) La quantité annuelle indicative de gaz à effet de serre émis dans l'atmosphère du fait des quantités d'énergies finales pour le chauffage, l'eau chaude sanitaire et le refroidissement des locaux, exprimée en quantité équivalente de dioxyde de carbone, calculée suivant les conventions mentionnées en annexe 4.1 du présent arrêté ;
4 b) Un classement de la quantité de gaz à effet de serre mentionnée en 4 a de la maison selon une échelle de référence notée de A à G indiquée en annexe 4.2 du présent arrêté en fonction de la valeur du rapport de cette quantité à la surface habitable de la maison ;
5. La part de la quantité d'énergie primaire d'origine renouvelable produite par les équipements installés à demeure et utilisée dans la maison, lorsque cette quantité peut être estimée ou mesurée ;
6. Le rapport d'inspection mentionné au h de l'article R. 134-2 du code de la construction et de l'habitation, si celui-ci est requis ;
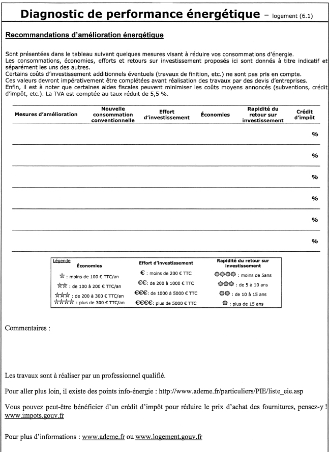
7. Des recommandations de travaux et d'amélioration de la gestion thermique du bien et de ses équipements, visant à réduire les consommations d'énergie ;
8. Sauf pour le cas visé au dernier alinéa du 3 a du présent article, les nouvelles consommations d'énergie primaire résultant des économies potentielles engendrées par les travaux visés en 7, ainsi que des évaluations par classes du coût des travaux, des économies financières réalisables sur les frais de consommation, et du temps de retour sur investissement ;
9. Sauf pour le cas visé au dernier alinéa du 3 a du présent article, la mention de la méthode de calcul utilisée et sa version ;
10. La date de l'arrêté en vigueur le jour de l'élaboration du diagnostic qui fixe les prix de l'énergie dans le tableau des tarifs des énergies mentionné à l'annexe 5.
Article 4
Le diagnostic de performance énergétique est établi selon le modèle indiqué en annexe 6.1 du présent arrêté.
Dans le cas des maisons individuelles mentionnées au troisième alinéa du 3 a de l'article 3, le diagnostic de performance énergétique est établi, suivant les choix opérés, selon le modèle 6.1 ou le modèle 6.2 indiqués en annexe 6 du présent arrêté.
Chapitre II
Diagnostic de performance énergétique dans des bâtiments collectifs à usage principal d'habitation pour lesquels le propriétaire du bien mis en vente n'est pas propriétaire de l'ensemble du bâtiment ou effectue une mise en copropriété
Section 1
Bâtiments pourvus d'un mode commun de chauffage
ou de production d'eau chaude
Article 5
Les dispositions de la présente section s'appliquent aux parties privatives du lot affectées au logement et situées dans des bâtiments collectifs à usage principal d'habitation dotés d'un mode de chauffage commun ou d'une production commune d'eau chaude sanitaire et pour lesquels le propriétaire du bien proposé à la vente n'est pas propriétaire du bâtiment entier. Elles s'appliquent aussi au cas où le propriétaire effectue une mise en copropriété du bâtiment.
Article 6
I. - Le propriétaire des équipements communs de chauffage, d'eau chaude des locaux, son mandataire ou le syndicat des copropriétaires, fournit à tout propriétaire faisant réaliser un diagnostic de performance énergétique les éléments suivants :
1. L'indication des énergies utilisées et une description des systèmes communs de chauffage, de production d'eau chaude sanitaire des locaux, y compris les équipements utilisant des énergies d'origine renouvelable produites par les équipements installés à demeure ; ce descriptif est établi selon les annexes 1.1 et 1.2 du présent arrêté ;
2. Par type d'énergie, la moyenne annuelle des quantités d'énergies finales consommées par le dispositif commun de chauffage, de production d'eau chaude sanitaire des locaux, pour l'ensemble du bâtiment ; ces quantités sont calculées sur la base de la moyenne des trois dernières années précédant le diagnostic, ou sur la moyenne des trois derniers exercices approuvés ou, à défaut, sur la durée effective de fourniture de chauffage ou d'eau chaude au bâtiment concerné pendant les trois années précédant le diagnostic. Les informations données sur les quantités d'énergies le sont dans l'unité énergétique qui a présidé à leur achat ;
3. Les coefficients de répartition des charges de chauffage et de production d'eau chaude sanitaire appliqués au lot.
II. - Dans le cas d'une vente réalisée dans le cadre d'une mise en copropriété, le propriétaire du bâtiment rassemble les informations mentionnées en I pour établir le diagnostic.
III. - Le diagnostic de performance énergétique comporte les éléments suivants :
1. L'identification du bâtiment et du lot et la surface habitable de ce dernier, établis selon l'annexe 1 ;
2. Un descriptif des principales caractéristiques thermiques et géométriques de la partie privative du lot, ainsi que la description des dispositifs communs de chauffage, de production d'eau chaude sanitaire des locaux mentionnée au 1 du I du présent article, y compris les équipements utilisant des énergies d'origine renouvelable produites par les équipements installés à demeure ; ce descriptif sera établi selon l'annexe 1.1 du présent arrêté ;
3 a) Par type d'énergie, la moyenne annuelle des quantités d'énergies finales nécessaires au chauffage et à l'alimentation en eau chaude sanitaire du bien, calculées à partir des éléments visés au 2 et 3 du I du présent article. Ces quantités sont exprimées dans l'unité énergétique qui a présidé à leur achat ;
Lorsqu'il existe un équipement énergétique fixe individuel assurant un complément de chauffage ou d'eau chaude sanitaire ou de refroidissement du bien objet du diagnostic, donnant lieu à un comptage particulier, la quantité d'énergie finale correspondante, établie sur la base de la moyenne des trois dernières années précédant le diagnostic, ou à défaut sur la durée effective de fourniture de chauffage ou d'eau chaude au bâtiment concerné pendant les trois années précédant le diagnostic, doit être ajoutée à la quantité d'énergie finale visée au premier alinéa du 3 a ; les facteurs de conversion en kilowattheures des énergies relevées sont définis en annexe 3.1 ;
3 b) Par type d'énergie, les quantités annuelles d'énergie finales résultant des quantités mentionnées au 3 a, exprimées en kilowattheures ;
3 c) Les quantités annuelles d'énergie primaire résultant des quantités mentionnées au 3 b calculées suivant les dispositions de l'annexe 3.2 du présent arrêté ;
3 d) Une évaluation en euros du montant annuel des frais de consommation inhérents aux quantités d'énergies finales mentionnées en 3 b, calculée suivant les dispositions de l'annexe 5 du présent arrêté, accompagnée de la date indiquée en 8 ;
3 e) Un classement de la quantité d'énergie primaire pour le chauffage, l'eau chaude et le refroidissement du lot selon une échelle de référence notée de A à G indiquée en annexe 3.3 du présent arrêté, en fonction de la valeur du rapport de cette quantité à la surface habitable de la partie privative du lot ;
4 a) La quantité annuelle indicative de gaz à effet de serre émis dans l'atmosphère du fait des quantités d'énergies finales pour le chauffage, l'eau chaude et le refroidissement des locaux, exprimée en quantité équivalente de dioxyde de carbone, suivant les conventions mentionnées en annexe 4.1 du présent arrêté ;
4 b) Le classement de la quantité de gaz à effet de serre mentionnée en 4 a du lot selon une échelle de référence notée de A à G indiquée en annexe 4.2 du présent arrêté, en fonction de la valeur du rapport de cette quantité à la surface habitable de la partie privative du lot ;
5. La part de la quantité d'énergie primaire d'origine renouvelable produite par les équipements installés à demeure et utilisée dans la partie privative du lot, lorsque cette quantité peut être estimée ou mesurée ;
6. Le rapport d'inspection mentionné au h de l'article R. 134-2 du code de la construction et de l'habitation, si celui-ci est requis ;
7. Des recommandations de travaux et d'amélioration de la gestion thermique de la partie privative du lot et des équipements qui y sont installés, visant à réduire ses consommations d'énergie ;
8. La date de l'arrêté en vigueur le jour de l'élaboration du diagnostic qui fixe les prix de l'énergie dans le tableau des tarifs des énergies mentionné à l'annexe 5.
IV. - En cas d'impossibilité de distinguer les quantités d'énergie consommées pour le chauffage et pour la production d'eau chaude sanitaire, les informations visées en 3 et 5 du III sont fournies pour le total des consommations correspondantes.
V. - Si un diagnostic de performance énergétique pour l'ensemble du bâtiment a été réalisé conformément aux dispositions du chapitre III ci-dessous par le propriétaire des équipements communs mentionnés au premier alinéa du présent I ou par le syndicat des copropriétaires, les quantités d'énergies finales nécessaires au chauffage et à l'alimentation en eau chaude sanitaire qui y sont mentionnées peuvent être utilisées en lieu et place des quantités mentionnées au premier alinéa du 3 a du III du présent article, avec l'accord du propriétaire du bien mis à la vente.
Article 7
Le diagnostic de performance énergétique est établi selon le modèle indiqué en annexe 6.2 du présent arrêté.
Section 2
Bâtiments dont les lots sont dotés de dispositifs individuels
de chauffage et de production d'eau chaude
Article 8
Les dispositions de la présente section s'appliquent aux parties privatives du lot affectées au logement et situées dans des bâtiments collectifs à usage principal d'habitation dont le chauffage et la production d'eau chaude sont assurés par des équipements individuels au lot à vendre, et pour lesquels le propriétaire du bien mis en vente n'est pas propriétaire du bâtiment entier. Elles s'appliquent aussi au cas où le propriétaire effectue une mise en copropriété.
Article 9
Le diagnostic de performance énergétique comporte les éléments suivants :
1. L'identification du bâtiment, du lot proposé à la vente et la surface habitable de ce dernier ;
2. Un descriptif des principales caractéristiques thermiques et géométriques de la partie privative du lot et des équipements énergétiques qui y sont installés, y compris les équipements utilisant des énergies d'origine renouvelable produites par les équipements installés à demeure ; ce descriptif sera établi selon l'annexe 1.1 du présent arrêté ;
3 a) Par type d'énergie, les quantités annuelles d'énergies finales nécessaires au chauffage, à la production d'eau chaude, et au refroidissement, le cas échéant, de la partie privative du lot et calculées suivant une utilisation standardisée, exprimées en kilowattheures ; le calcul est mené au moyen d'une méthode conventionnelle satisfaisant les dispositions de l'arrêté relatif aux méthodes et procédures applicables au diagnostic de performance énergétique pour les bâtiments proposés à la vente ;
Par quantité d'énergie finale nécessaire au chauffage, on entend les consommations d'énergie liées aux déperditions thermiques par l'enveloppe du bâtiment, les pertes des systèmes thermiques, les déperditions thermiques par renouvellement d'air et par ventilation, diminuées des apports internes de la maison et des apports solaires.
Pour les logements situés dans des bâtiments construits avant le 1er janvier 1948, les quantités annuelles d'énergie finales visées au premier alinéa du présent 3 a peuvent ne pas être calculées suivant une méthode conventionnelle, mais être définies par la moyenne des consommations réelles sur les trois dernières années civiles précédant le diagnostic ou a défaut sur la durée effective de fourniture de chauffage ou d'eau chaude sanitaire.
Les facteurs de conversion en kilowattheures des énergies relevées sont définis en annexe 3.1.
3 b) Les quantités annuelles d'énergie primaire par type de consommation résultant des quantités consommées mentionnées au 3 a, calculées en tenant compte des dispositions de l'annexe 3.2 du présent arrêté ;
3 c) Une évaluation en euros du montant annuel des frais de consommation inhérents aux quantités d'énergies finales mentionnées en 3 a, calculée suivant les dispositions de l'annexe 5 du présent arrêté, accompagnée de la date indiquée en 10 ;
3 d) Un classement de la quantité d'énergie primaire pour le chauffage, l'eau chaude sanitaire et le refroidissement du lot selon une échelle de référence notée de A à G indiquée en annexe 3.3 du présent arrêté, en fonction de la valeur du rapport de cette quantité à la surface habitable de la partie privative du lot ;
4 a) La quantité annuelle indicative de gaz à effet de serre émis dans l'atmosphère du fait de la quantité d'énergies finales pour le chauffage, l'eau chaude sanitaire et le refroidissement des locaux, exprimée en quantité équivalente de dioxyde de carbone, suivant les conventions mentionnées en annexe 4.1 du présent arrêté ;
4 b) Un classement de la quantité de gaz à effet de serre mentionnée en 4 a selon une échelle de référence notée de A à G indiquée en annexe 4.2 du présent arrêté, en fonction de la valeur du rapport de cette quantité à la surface habitable de la partie privative du lot ;
5. La part de la quantité d'énergie primaire d'origine renouvelable produite par les équipements installés à demeure et utilisée dans la partie privative du lot, lorsque cette quantité peut être estimée ou mesurée ;
6. Le rapport d'inspection mentionné au h de l'article R. 134-2 du code de la construction et de l'habitation, si celui-ci est requis ;
7. Des recommandations de travaux et d'amélioration de la gestion thermique du lot et de ses équipements, visant à réduire les consommations d'énergie ;
8. Sauf pour le cas visé au dernier alinéa du 3 a, les nouvelles consommations d'énergie primaire résultant des économies potentielles engendrées par les travaux visés en 7, ainsi que des évaluations par classes du coût des travaux, des économies financières réalisables sur les frais de consommation, et du temps de retour sur investissement ;
9. Sauf pour le cas visé au dernier alinéa du 3 a, la mention de la méthode utilisée et de sa version ;
10. La date de l'arrêté en vigueur le jour de l'élaboration du diagnostic qui fixe les prix de l'énergie dans le tableau des tarifs des énergies mentionné à l'annexe 5.
Article 10
Le diagnostic de performance énergétique est établi selon le modèle indiqué en annexe 6.1 du présent arrêté.
Chapitre III
Diagnostic de performance énergétique pour les bâtiments collectifs à usage principal d'habitation proposés globalement à la vente
Article 11
Les dispositions du présent chapitre s'appliquent aux bâtiments à usage principal d'habitation pourvus d'un chauffage commun ou d'installations de chauffage individuel proposés globalement à la vente.
Article 12
Le diagnostic de performance énergétique comporte les éléments suivants :
1. L'identification du bâtiment et sa surface habitable, calculée suivant les dispositions de l'annexe 1 ;
2. Un descriptif des principales caractéristiques thermiques et géométriques du bâtiment et de ses équipements énergétiques, y compris les équipements utilisant des énergies d'origine renouvelable produite par les équipements installés à demeure ; ce descriptif sera établi selon les annexes 1.1 et 1.2 du présent arrêté ;
3 a) Par type d'énergie, les quantités annuelles d'énergies finales nécessaires au chauffage, à la production d'eau chaude sanitaire et au refroidissement, calculées suivant une utilisation standardisée du bâtiment, exprimées en kilowattheures ; le calcul est réalisé au moyen d'une méthode conventionnelle satisfaisant les dispositions de l'arrêté relatif aux méthodes et procédures applicables au diagnostic de performance énergétique pour les bâtiments proposés à la vente.
Par quantité d'énergie finale nécessaire au chauffage, on entend les besoins en énergie liés aux déperditions thermiques par l'enveloppe du bâtiment, les pertes des systèmes thermiques, les déperditions thermiques par renouvellement d'air, diminués des apports internes et des apports solaires.
Pour les bâtiments construits avant le 1er janvier 1948, ainsi que pour tous les bâtiments dotés d'une installation commune de chauffage ou d'eau chaude sanitaire, les quantités annuelles d'énergie finales visées à l'alinéa précédent peuvent ne pas être calculées suivant une méthode conventionnelle mais être définies par la moyenne des consommations réelles sur les trois dernières années précédant le diagnostic ou, à défaut, sur la durée effective de fourniture de chauffage ou d'eau chaude sanitaire ; les facteurs de conversion en kilowattheures des énergies relevées sont définis en annexe 3.1 ;
3 b) Les quantités d'énergie primaire par type de consommation résultant des quantités d'énergies finales mentionnées en 3 a, calculées suivant les dispositions de l'annexe 3.2 du présent arrêté ;
3 c) Une évaluation en euros des montants annuels des frais de consommation inhérents aux quantités d'énergies finales mentionnées en 3 a, calculée suivant les dispositions de l'annexe 5 du présent arrêté, accompagnée de la date indiquée en 10 ;
3 d) Un classement de la quantité totale d'énergie primaire mentionnée en 3 b selon une échelle de référence notée de A à G indiquée en annexe 3.3 en fonction de la valeur du rapport de cette quantité à la surface habitable du bâtiment ;
4 a) La quantité annuelle indicative de gaz à effet de serre émis dans l'atmosphère du fait des quantités d'énergies finales mentionnées en 3 a, exprimée en quantité équivalente de dioxyde de carbone, suivant les conventions mentionnées en annexe 4.1 ;
4 b) Un classement de la quantité annuelle de gaz à effet de serre mentionnée en 4 a selon une échelle de référence notée de A à G indiquée en annexe 4.2 en fonction de la valeur du rapport de cette quantité à la surface habitable du bâtiment.
5. La part de la quantité d'énergie primaire d'origine renouvelable produite par les équipements installés à demeure et utilisée dans la partie privative du lot, lorsque cette quantité peut être estimée ou mesurée ;
6. Le rapport d'inspection mentionné au h de l'article R. 134-2 du code de la construction et de l'habitation, si celui-ci est requis ;
7. Des recommandations de travaux et d'amélioration de la gestion thermique du bâtiment et de ses équipements, visant à réduire les consommations d'énergie ;
8. Sauf pour le cas visé au dernier alinéa du 3 a, les nouvelles consommations d'énergie primaire résultant des économies potentielles engendrées par les travaux visés en 7, ainsi que des évaluations par classe du coût des travaux, des économies financières réalisables sur les frais de consommation et du temps de retour sur investissement ;
9. Sauf pour le cas visé au dernier alinéa du 3 a, la mention de la méthode de calcul utilisée et de sa version ;
10. La date de l'arrêté en vigueur le jour de l'élaboration du diagnostic qui fixe les prix de l'énergie dans le tableau des tarifs des énergies mentionné à l'annexe 5.
Article 13
Le diagnostic de performance énergétique est établi selon le modèle indiqué en annexe 6.1.
Chapitre IV
Diagnostic de performance énergétique pour les bâtiments ou parties de bâtiment à usage principal autres que d'habitation pour lesquels le propriétaire du bien mis en vente n'est pas propriétaire de l'ensemble du bâtiment ou effectue une mise en copropriété
Section 1
Bâtiments pourvus d'un mode collectif de chauffage,
de production d'eau chaude sanitaire ou de refroidissement
Article 14
Les dispositions de la présente section s'appliquent aux bâtiments ou parties de bâtiments à usage principal autre que d'habitation pourvus de dispositifs communs de chauffage, de production d'eau chaude sanitaire ou de refroidissement collectifs, et pour lesquels le propriétaire du bien mis en vente n'est pas propriétaire du bâtiment entier. Elles s'appliquent aussi au cas où le propriétaire effectue une mise en copropriété.
Article 15
I. - Le propriétaire des installations énergétiques communes, et notamment des installations communes de chauffage, d'eau chaude ou de refroidissement des locaux, son mandataire ou le syndicat des copropriétaires fournit à tout propriétaire faisant réaliser un diagnostic de performance énergétique les éléments suivants :
1. L'indication des énergies utilisées et une description des systèmes communs de chauffage, de production d'eau chaude sanitaire ou de refroidissement des locaux, y compris les équipements utilisant des énergies d'origine renouvelable produites par les équipements installés à demeure ; ce descriptif sera établi selon les annexes 1.1 et 1.2 du présent arrêté ;
2. Par type d'énergie, la quantité totale d'énergie finale relevée ou facturée à l'ensemble du bâtiment pour tous les usages communs de l'énergie ; les facteurs de conversion en kilowattheures des énergies relevées sont définis en annexe 3.1 ;
Par quantité annuelle d'énergie finale nécessaire au chauffage, on entend les besoins en énergie liés aux déperditions thermiques par l'enveloppe du bâtiment, les pertes des systèmes thermiques, les déperditions thermiques par renouvellement d'air et par ventilation, diminués des apports internes du bâtiment liés aux activités et des apports solaires.
Les quantités mentionnées au premier alinéa sont calculées sur la base de la moyenne des trois dernières années précédant le diagnostic, ou sur la moyenne des trois derniers exercices approuvés ou, à défaut, sur la durée effective de chauffage, d'eau chaude ou de refroidissement du bâtiment concerné. Les informations données sur les quantités d'énergie le sont dans l'unité énergétique qui a présidé à leur achat ;
3. Les coefficients de répartition des charges appliquées au lot pour tous les usages énergétiques ;
II. - Dans le cas d'une mise en copropriété, le propriétaire du bâtiment rassemble les informations mentionnées en I pour établir le diagnostic.
III. - Le diagnostic de performance énergétique comporte les éléments suivants :
1. L'identification du bâtiment, du lot proposé à la vente, tels que mentionnés en annexe 1.1, et la surface utile du lot.
2. Un descriptif des principales caractéristiques thermiques et géométriques du lot et des équipements énergétiques qui y sont installés, établi selon l'annexe 1.1 du présent arrêté, ainsi qu'un descriptif des dispositifs communs de chauffage, de refroidissement ou de production d'eau chaude sanitaire, établie selon l'annexe 1.2 du présent arrêté, ces deux descriptifs incluent, le cas échéant, les équipements utilisant des énergies d'origine renouvelable produite par des équipements installés à demeure ;
3 a) Par type d'énergie, la somme de deux termes :
- le premier est la moyenne annuelle des quantités d'énergie finales relatives aux équipements énergétiques communs du bâtiment, affectée au lot et calculée à partir des éléments visés au 2 et au 3 ;
- le deuxième est la moyenne annuelle des quantités d'énergie finales relatives aux équipements énergétiques propres au lot considéré, sur la base de la moyenne des trois dernières années précédant le diagnostic ou, à défaut, sur la durée effective de chauffage, d'eau chaude ou de refroidissement.
Ces quantités sont exprimées dans l'unité qui a présidé à leur achat ;
3 b) Les quantités d'énergie finales mentionnées au 3 du III du présent article, exprimées en kilowattheures ; les facteurs de conversion en kilowattheures des énergies relevées sont définis en annexe 3.1 ;
3 c) Par type d'énergie, les quantités annuelles d'énergie primaire résultant des quantités mentionnées au 3 b calculées suivant les dispositions de l'annexe 3.2 du présent arrêté ;
3 d) Une évaluation en euros des montants annuels des frais de consommation inhérents aux quantités d'énergies finales mentionnées en 3 b, calculée suivant les dispositions de l'annexe 5 du présent arrêté, accompagnée de la date indiquée en 8 ;
3 e) Un classement de la quantité totale en énergie primaire mentionnée en 3 c, selon une échelle de référence notée de A à I indiquée en annexe 3.3 du présent arrêté en fonction de la valeur du rapport de cette quantité à la surface utile du lot ;
4 a) La quantité annuelle indicative de gaz à effet de serre émis dans l'atmosphère du fait des quantités d'énergies finales mentionnées en 3 b, exprimée en quantité équivalente de dioxyde de carbone, suivant les conventions mentionnées en annexe 4.1 ;
4 b) Un classement de la quantité annuelle de gaz à effet de serre mentionnée en 4 a selon une échelle de référence notée de A à I indiquée en annexe 4.2 en fonction de la valeur du rapport de cette quantité à la surface utile du lot ;
5. La part de la quantité d'énergie primaire d'origine renouvelable produite par les équipements installés à demeure et utilisée par la partie privative du lot, lorsque cette quantité peut être estimée ou mesurée ;
6. Le rapport d'inspection mentionné au h de l'article R. 134-2 du code de la construction et de l'habitation, si celui-ci est requis ;
7. Des recommandations de travaux et d'amélioration de la gestion thermique du lot et des équipements qui y sont installés, visant à réduire ses consommations d'énergie ;
8. La date de l'arrêté en vigueur le jour de l'élaboration du diagnostic qui fixe les prix de l'énergie dans le tableau des tarifs des énergies mentionné à l'annexe 5.
Article 16
Le diagnostic de performance énergétique est établi selon le modèle indiqué en annexe 6.3.
Section 2
Bâtiments non pourvus de modes communs de chauffage,
de production d'eau chaude sanitaire ni de refroidissement
Article 17
Les dispositions de la présente section s'appliquent aux bâtiments ou aux parties de bâtiment à usage principal autre que d'habitation, dont le chauffage et la production d'eau chaude, et le cas échéant le refroidissement des locaux, sont assurés par des équipements individuels au lot à vendre, et pour lesquels le propriétaire du bien mis en vente n'est pas propriétaire du bâtiment entier. Elles s'appliquent aussi au cas où le propriétaire effectue une mise en copropriété.
Article 18
I. - Le propriétaire des installations énergétiques communes alimentant les locaux, son mandataire ou le syndicat des copropriétaires fournit à tout propriétaire faisant réaliser un diagnostic de performance énergétique les éléments suivants :
1. L'indication des énergies utilisées ;
2. Par type d'énergie, la quantité totale d'énergie finale relevée ou facturée à l'ensemble du bâtiment pour tous les usages communs de l'énergie ;
Les quantités mentionnées au premier alinéa sont calculées sur la base de la moyenne des trois dernières années précédant le diagnostic, ou sur la moyenne des trois derniers exercices approuvés ou à défaut sur la durée effective de chauffage, d'eau chaude ou de refroidissement du bâtiment concerné.
Les informations données sur les quantités d'énergie le sont dans l'unité énergétique qui a présidé à leur achat ;
3. Les coefficients de répartition des charges appliquées au lot pour tous les usages énergétiques ;
II. - Dans le cas d'une mise en copropriété, le propriétaire du bâtiment rassemble les informations mentionnées en I pour établir le diagnostic.
III. - Le diagnostic de performance énergétique comporte les éléments suivants :
1. L'identification du bâtiment et du lot proposé à la vente, établis selon l'annexe 1.1 du présent arrêté, la surface utile du bâtiment et celle du lot ;
2. L'indication des énergies utilisées et un descriptif des principales caractéristiques thermiques et géométriques de la partie privative du lot et des équipements énergétiques qui y sont installés, y compris les équipements utilisant des énergies d'origine renouvelable produites par les équipements installés à demeure ; ce descriptif est établi selon les annexes 1.1 et 1.2 du présent arrêté ;
3 a) Par type d'énergie, la somme de deux termes :
- le premier est la moyenne annuelle des quantités d'énergie finales relatives aux équipements énergétiques communs du bâtiment, affectée au lot et calculée à partir des éléments visés au 2 et au 3 ;
- le deuxième est la moyenne annuelle des quantités d'énergie finales relatives aux équipements énergétiques propres au lot considéré, sur la base de la moyenne des trois dernières années précédant le diagnostic ou à défaut sur la durée de fourniture de chauffage ou d'eau chaude à la partie du bâtiment concernée.
Ces quantités sont exprimées dans l'unité qui a présidé à leur achat ; les facteurs de conversion en kilowattheures des énergies relevées sont définis en annexe 3.1 ;
3 b) Par type d'énergie, les quantités d'énergie finale mentionnées au 3 a) du présent article exprimées en kilowattheures ;
3 c) Les quantités annuelles d'énergie primaire résultant des quantités consommées mentionnées au 3 b, calculées en tenant compte des dispositions de l'annexe 3.2 du présent arrêté ;
3 d) Une évaluation en euros des montants annuels des frais de consommation inhérents aux quantités d'énergies finales mentionnées en 3 b, calculée suivant les dispositions de l'annexe 5 du présent arrêté, accompagnée de la date indiquée en 8 ;
3 e) Un classement de la quantité totale d'énergie primaire mentionnée en 3 c selon une échelle de référence notée de A à I indiquée en annexe 3.3 du présent arrêté en fonction de la valeur du rapport de cette quantité à la surface utile du lot ;
4 a) La quantité annuelle indicative de gaz à effet de serre émis dans l'atmosphère du fait des quantités d'énergies finales mentionnées en 3 b, exprimée en quantité équivalente de dioxyde de carbone, suivant les conventions mentionnées en annexe 4.1 ;
4 b) Un classement de la quantité annuelle de gaz à effet de serre mentionnée en 4 a selon une échelle de référence notée de A à I indiquée en annexe 4.2 en fonction de la valeur du rapport de cette quantité à la surface utile du lot ;
5. La part de la quantité d'énergie primaire d'origine renouvelable produite par les équipements installés à demeure et utilisée dans la partie privative du lot, lorsque cette quantité peut être estimée ou mesurée ;
6. Le rapport d'inspection mentionné au h de l'article R. 134-2 du code de la construction et de l'habitation, si celui-ci est requis ;
7. Des recommandations de travaux et d'amélioration de la gestion thermique du lot et de ses équipements, visant à réduire les consommations d'énergie ;
8. La date de l'arrêté en vigueur le jour de l'élaboration du diagnostic qui fixe les prix de l'énergie dans le tableau des tarifs des énergies mentionné à l'annexe 5.
Article 19
Le diagnostic de performance énergétique est établi selon le modèle indiqué en annexe 6.3 du présent arrêté.
Chapitre V
Diagnostic de performance énergétique pour les bâtiments à usage principal non résidentiel proposés globalement à la vente
Article 20
Les dispositions du présent chapitre s'appliquent aux bâtiments à usage principal autre que résidentiel pourvus d'équipements communs ou individuels de chauffage, d'eau chaude sanitaire ou de refroidissement, proposés globalement à la vente.
Article 21
Le diagnostic de performance énergétique du bâtiment comporte les éléments suivants :
1. L'identification du bâtiment et sa surface utile ;
2. L'indication des énergies utilisées et un descriptif des principales caractéristiques thermiques et géométriques du bâtiment et des équipements énergétiques qui y sont installés, y compris les équipements utilisant des énergies d'origine renouvelable produite par les équipements installés à demeure ; ce descriptif sera établi selon les annexes 1.1 et 1.2 du présent arrêté ;
3 a) Par type d'énergie, la somme de deux termes :
- le premier est la moyenne annuelle des quantités d'énergie finales relatives aux équipements énergétiques communs du bâtiment ;
- le deuxième est la moyenne annuelle des quantités d'énergie finales relatives aux équipements énergétiques des parties privatives.
Ces quantités sont calculées sur la base de la moyenne des trois dernières années précédant le diagnostic, ou sur la moyenne des trois derniers exercices approuvés ou à défaut sur la durée de fourniture de chauffage ou d'eau chaude du bâtiment concerné.
Les informations données sur les quantités d'énergies le sont dans l'unité énergétique qui a présidé à leur achat ;
3 b) Par type d'énergie, les quantités d'énergie finales visées au 3 a exprimées en kilowattheures, les facteurs de conversion en kilowattheures des énergies relevées sont définis en annexe 3.1 ;
3 c) Les quantités annuelles d'énergie primaire résultant des quantités mentionnées au 3 b, calculées suivant les dispositions de l'annexe 3.2 du présent arrêté ;
3 d) Une évaluation en euros des montants annuels des frais de consommation inhérents aux quantités d'énergies finales mentionnées en 3 b, calculée suivant les dispositions de l'annexe 5 du présent arrêté, accompagnée de la date mentionnée en 8) ;
3 e) Un classement de la quantité totale d'énergie primaire mentionnée en 3 b selon une échelle de référence notée de A à I indiquée en annexe 3.3 en fonction de la valeur du rapport de cette quantité à la surface du bâtiment ;
4 a) La quantité annuelle indicative de gaz à effet de serre émis dans l'atmosphère du fait des quantités d'énergies finales mentionnées en 3 b, exprimée en quantité équivalente de dioxyde de carbone, suivant les conventions mentionnées en annexe 4.1 ;
4 b) Un classement de la quantité annuelle de gaz à effet de serre mentionnée en 4 a selon une échelle de référence notée de A à I indiquée en annexe 4.2 en fonction de la valeur du rapport de cette quantité à la surface habitable du bâtiment ;
5. La part de la quantité d'énergie primaire d'origine renouvelable produite par les équipements installés à demeure et utilisée dans la partie privative du lot, lorsque cette quantité peut être estimée ou mesurée ;
6. Le rapport d'inspection mentionné au h de l'article R. 134-2 du code de la construction et de l'habitation, si celui-ci est requis ;
7. Des recommandations de travaux et d'amélioration de la gestion thermique du bâtiment et de ses équipements, visant à réduire les consommations d'énergie ;
8. La date de l'arrêté en vigueur le jour de l'élaboration du diagnostic qui fixe les prix de l'énergie dans le tableau des tarifs des énergies mentionné à l'annexe 5.
Article 22
Le diagnostic de performance énergétique est établi selon le modèle indiqué en annexe 6.3 du présent arrêté.
Chapitre VI
Dispositions finales
Article 23
Le directeur général de l'urbanisme, de l'habitat et de la construction et le directeur général de l'énergie et des matières premières sont chargés, chacun en ce qui le concerne, de l'exécution du présent arrêté, qui sera publié au Journal officiel de la République française.
Fait à Paris, le 15 septembre 2006.
A N N E X E S
A N N E X E 1
DESCRIPTIF DES CARACTÉRISTIQUES DU BÂTIMENT
Nota. - Toute grandeur physique sera accompagnée d'une unité de mesure appropriée.
A N N E X E 1.1
IDENTIFICATIONS ET DESCRIPTIF TECHNIQUE
Les éléments suivants figurent sur le diagnostic de performance énergétique :
a) Identification du logement, du propriétaire, du diagnostic et de la personne qui en est chargée par le propriétaire :
- numéro du diagnostic ;
- durée maximale de validité du diagnostic de performance énergétique (fixée à 10 ans à compter de la date d'établissement) ;
- type de bâtiment, a minima parmi ceux définis par le présent arrêté : maison individuelle, immeuble collectif, immeuble non résidentiel ;
- pour l'immeuble non résidentiel, préciser le secteur d'activités (par exemple : bureau, commerce...) ;
- année de construction du bâtiment, ou à défaut, évaluation de cette date ;
- pour un bâtiment à usage principal d'habitation : surface habitable du lot ;
- pour un bâtiment à usage principal autre que d'habitation : surface utile du lot ;
- adresse complète du logement, incluant la situation dans l'immeuble ;
- nom et prénom du propriétaire et ses coordonnées postales ;
- nom, signature, coordonnées téléphoniques et postales de la personne chargée du diagnostic ;
- date de visite par cette personne ;
- date d'établissement du diagnostic ;
- pour un bâtiment dont les installations communes de chauffage, de refroidissement ou de production d'eau chaude sont collectives dans le cas d'un immeuble appartenant à un propriétaire unique : nom et coordonnées du propriétaire de ces installations.
b) Descriptif technique du lot à la vente et des équipements :
- types de murs ;
- types de toiture ;
- type de menuiseries, et notamment la désignation du type de fenêtres (par exemple : simple vitrage, double vitrage, double fenêtre, simple vitrage avec survitrage) et du matériau principal du cadre et du dormant (par exemple : PVC, bois, aluminium) ;
- type de plancher-bas ;
- dispositif(s) de chauffage : pour chaque dispositif, indiquer s'il est individuel ou collectif, le type d'énergie utilisé, et si disponibles, sa puissance, son rendement et sa date de fabrication ;
- type d'émetteurs de chauffage ;
- dispositif d'eau chaude sanitaire : pour chaque dispositif, indiquer s'il est individuel ou collectif, le type d'énergie utilisé, et si disponibles sa puissance, son rendement et sa date de fabrication ;
- veilleuses : indiquer si les chaudières comportent une veilleuse.
A N N E X E 1.2
ÉQUIPEMENTS COMMUNS DE CHAUFFAGE, DE PRODUCTION D'EAU CHAUDE SANITAIRE OU DE REFROIDISSEMENT DES LOCAUX EN BÂTIMENT COLLECTIF
Pour les locaux en bâtiment collectif, le diagnostic mentionne, outre les éléments de l'annexe 1.1, les éléments suivants relatifs aux équipements communs servant au chauffage, à la production d'eau chaude sanitaire ou au refroidissement de locaux :
- type d'équipement ;
- type d'énergie utilisée.
A N N E X E 2
MODE D'OBTENTION DES SURFACES DE CALCUL
2.1. Surfaces de fenêtres
Le diagnostiqueur procède à une estimation de la surface des fenêtres du lot.
2.2. Surface du bien
Pour un bâtiment à usage principal d'habitation, le diagnostiqueur obtient la surface habitable sur la base des informations fournies par le propriétaire. A défaut, il estime lui-même la surface habitable du bien par des relevés appropriés.
Pour un bâtiment à usage principal autre que d'habitation, le diagnostiqueur obtient la surface utile sur la base des informations fournies par le propriétaire. À défaut, il estime lui-même la surface utile du bien par des relevés appropriés.
A N N E X E 3
FACTEURS DE CONVERSION DES ÉNERGIES
A N N E X E 3.1
CONVERSION EN KILOWATTHEURES DES ÉNERGIES RELEVÉES
Le pouvoir calorifique supérieur (PCS) donne le dégagement maximal théorique de la chaleur lors de la combustion, y compris la chaleur de condensation de la vapeur d'eau produite lors de la combustion.
Le pouvoir calorifique inférieur (PCI) des combustibles est exprimé en kilowattheures. Il exclut de la chaleur dégagée la chaleur de condensation de l'eau supposée restée à l'état de vapeur à l'issue de la combustion.
Les compteurs d'énergie affichent une quantité d'énergie finale PCS. Le diagnostiqueur convertit ces quantités en énergie finale PCI suivant les facteurs mentionnés dans la présente annexe. Il convertira ensuite les valeurs d'énergie finale PCI en énergie primaire (voir l'annexe 3.2).
Bois de chauffage
| Plaquettes d'industrie | 2 200 kWh PCI par tonne |
| Plaquettes forestières | 2 760 kWh PCI par tonne |
| Granulés, briquettes | 4 600 kWh PCI par tonne |
| Bûches | 1 680 kWh PCI par tonne |
Gaz naturel
a) Dans la majeure partie des cas, les relevés de consommation de gaz naturel figurant sur les factures des fournisseurs de gaz mentionnent des valeurs de consommations en kWh PCS.
Les consommations figurant sur le diagnostic de performance énergétique sont exprimées en kWh PCI. Le diagnostiqueur les obtient à partir des valeurs de kWh PCS mentionnées sur les factures en les divisant par un facteur de 1,11.
b) Si tel n'est pas le cas, et que les relevés sont quantifiés en volume, le diagnostiqueur obtient les consommations PCI à faire figurer sur le diagnostic de performance énergétique en multipliant les valeurs de m³ (n) mentionnées sur la facture par 11,628.
Le mètre-cube normal, noté m³ (n) est un volume d'un mètre cube de gaz mesuré dans des conditions normales de température et de pression (à une température de 0 °C et à une pression atmosphérique moyenne de 1 013 hectopascals).
Gaz propane ou butane
| UNITE PHYSIQUE | en kWh (PCI) par tonne |
en kWh (PCI) par litre |
| Gaz propane ou butane : propane butane |
13 800 12 780 |
6,9 |
Si les relevés sont quantifiés en volume, le diagnostiqueur obtient les consommations PCI à faire figurer sur le diagnostic de performance énergétique en multipliant les valeurs de m³ (n) mentionnées sur la facture par 11,628.
Le mètre-cube normal est un volume d'un mètre cube de gaz mesuré dans des conditions normales de température et de pression (à une température de 0 °C et à une pression atmosphérique moyenne de 1 013 hectopascals).
Fioul domestique
UNITE PHYSIQUE |
en kWh (PCI) par litre |
| Pétrole brut, gaz, fioul domestique | 9,97 |
Charbon
UNITE PHYSIQUE |
en kWh (PCI) par tonne |
| Houille | 7 222 |
| Coque de houille | 7 778 |
| Agglomérés et briquettes de lignite | 8 889 |
| Lignites et produits de récupération | 4 722 |
A N N E X E 3.2
CONVERSION DES ÉNERGIES FINALES EN ÉNERGIE PRIMAIRE
Les facteurs de conversion de l'énergie finale (exprimée en PCI) en énergie primaire sont les suivants :
+ 2,58 pour l'électricité ;
+ 1 pour les autres énergies.
A N N E X E 3.3
ÉCHELLE DES CONSOMMATIONS D'ÉNERGIE
3.3.1. Généralités
3.3.1 a. Cas des bâtiments à usage principal d'habitation
Pour les bâtiments à usage principal d'habitation, l'étiquette énergie présente le classement du rapport de la quantité d'énergie primaire du bien à vendre sur la surface habitable du lot, selon une échelle de référence notée de A à G (soit un classement dans une échelle de sept classes).
Elle doit être conforme au modèle suivant :

Les couleurs qui doivent être utilisées pour l'impression de l'étiquette énergie sont les suivantes :
- pour la flèche représentant la classe A : 100 % cyan, 0 % magenta, 100 % jaune, 0 % noir ;
- pour la flèche représentant la classe B : 70 % cyan, 0 % magenta, 100 % jaune, 0 % noir ;
- pour la flèche représentant la classe C : 30 % cyan, 0 % magenta, 100 % jaune, 0 % noir ;
- pour la flèche représentant la classe D : 0 % cyan, 0 % magenta, 100 % jaune, 0 % noir ;
- pour la flèche représentant la classe E : 0 % cyan, 30 % magenta, 100 % jaune, 0 % noir ;
- pour la flèche représentant la classe F : 0 % cyan, 70 % magenta, 100 % jaune, 0 % noir ;
- pour la flèche représentant la classe G : 0 % cyan, 100 % magenta, 100 % jaune, 0 % noir ;
- pour le contenu : 100 % cyan, 0 % magenta, 70 % jaune, 0 % noir.
Tout le texte doit être rédigé en caractères noirs, à l'exception du curseur situant le niveau de consommation dans l'échelle et du texte situé dans la barre rouge représentant la classe G. Ce curseur comporte du texte blanc sur fond noir. Le texte figurant dans la classe G doit être en blanc. Le fond de l'étiquette doit être blanc.
Une reproduction lisible en noir et blanc de l'étiquette peut être produite, ainsi que de l'ensemble du diagnostic.
L'étiquette énergie mentionne les limites de classes comme définies au paragraphe 3.2.2 a.
3.3.1 b. Cas des bâtiments à usage principal autre que d'habitation
Pour les bâtiments à usage principal autre que d'habitation, l'étiquette énergie présente le classement du rapport de la quantité d'énergie primaire du bien à vendre sur la surface utile du lot, selon une échelle de référence, notée de A à I (soit un classement dans une échelle de neuf classes).
Elle doit être conforme au modèle suivant :

Les couleurs qui doivent être utilisées pour l'impression de l'étiquette énergie sont les suivantes :
- pour la flèche représentant la classe A : 100 % cyan, 0 % magenta, 100 % jaune, 0 % noir ;
- pour la flèche représentant la classe B : 70 % cyan, 0 % magenta, 100 % jaune, 0 % noir ;
- pour la flèche représentant la classe C : 30 % cyan, 0 % magenta, 100 % jaune, 0 % noir ;
- pour la flèche représentant la classe D : 0 % cyan, 0 % magenta, 100 % jaune, 0 % noir ;
- pour la flèche représentant la classe E : 0 % cyan, 30 % magenta, 100 % jaune, 0 % noir ;
- pour la flèche représentant la classe F : 0 % cyan, 70 % magenta, 100 % jaune, 0 % noir ;
- pour la flèche représentant la classe G : 0 % cyan, 100 % magenta, 100 % jaune, 0 % noir ;
- pour la flèche représentant la classe H : 50 % noir ;
- pour la flèche représentant la classe I : 85 % noir.
- pour le contenu : 100 % cyan, 0 % magenta, 70 % jaune, 0 % noir.
Tout le texte doit être rédigé en caractères noirs, à l'exception du curseur situant le niveau de consommation dans l'échelle et du texte situé dans les barres représentant les classes G, H et I. Ce curseur comporte du texte blanc sur fond noir. Le texte figurant dans les classes G, H et I doit être en blanc. Le fond de l'étiquette doit être blanc.
Une reproduction lisible en noir et blanc de l'étiquette peut être produite, ainsi que de l'ensemble du diagnostic.
L'étiquette énergie mentionne les limites de classes comme définies au paragraphe 3.2.2 b.
Pour les bâtiments à usage principal autre que d'habitation, l'étiquette énergie peut au choix mentionner ou non les limites de classe définies au paragraphe 3.2.2 b.
3.3.2. Limites des classes de l'étiquette énergie
a) Bâtiments à usage principal d'habitation
Pour ces bâtiments, la structuration des classes de l'étiquette énergie est la suivante :
Désignation de la classe |
Plage de consommation (kWh/m².an) |
A |
inférieur ou égal à 50 |
B |
de 51 à 90 |
C |
de 91 à 150 |
D |
de 151 à 230 |
E |
de 231 à 330 |
F |
de 331 à 450 |
G |
strictement supérieur à 450 |
b) Bâtiments à usage principal autre que d'habitation
Pour ces bâtiments, la structuration des classes de l'étiquette énergie est la suivante :
Désignation de la classe |
Plage de consommation (kWh/m².an) |
A |
inférieur ou égal à 50 |
B |
de 51 à 90 |
C |
de 91 à 150 |
D |
de 151 à 230 |
E |
de 231 à 330 |
F |
de 331 à 450 |
G |
de 451 à 590 |
H |
de 591 à 750 |
I |
strictement supérieur à 750 |
A N N E X E 4
ÉTIQUETTE CLIMAT POUR LES ÉMISSIONS DE GAZ À EFFET DE SERRE
A N N E X E 4.1
FACTEURS DE CONVERSION DES KILOWATTHEURES FINAUX
EN ÉMISSIONS DE GAZ À EFFET DE SERRE
Les émissions de gaz à effet de serre considérées se réduisent à celles de dioxyde de carbone (CO2) consécutives aux consommations d'énergie.
4.1.1. Facteurs de conversion à utiliser pour le cas où les consommations
sont estimées au moyen d'une méthode de calcul
En kilogramme de CO2 par kilowattheure PCI d'énergie finale :
Chauffage |
Production d'eau chaude sanitaire |
Refroidissement |
|
| Bois, biomasse | 0,013 |
0,013 |
|
| Gaz naturel | 0,234 |
0,234 |
0,234 |
| Fioul domestique | 0,300 |
0,300 |
0,300 |
| Charbon | 0,384 |
0,384 |
|
| Gaz propane ou butane | 0,274 |
0,274 |
0,274 |
| Autres combustibles fossiles | 0,320 |
0,320 |
|
| Electricité d'origine renouvelable utilisée dans le bâtiment | 0 |
0 |
0 |
| Electricité (hors électricité d'origine renouvelable utilisée dans le bâtiment ) | 0,180 |
0,040 |
0,040 |
Pour les réseaux de chaleur ou de froid, pour lesquels la dispersion du contenu CO2 est importante, la valeur à retenir est précisée à l'annexe 7.
Pour figurer dans cette annexe, les gestionnaires de réseaux doivent faire parvenir le contenu en CO2 de leur réseau et les justifications correspondantes à la direction générale de l'énergie et des matières premières (DGEMP).
Pour les réseaux de chaleur ou de froid qui ne figurent pas à l'annexe 7, la valeur est fixée par défaut au contenu CO2 le plus élevé, celui du charbon.
4.1.2. Facteurs de conversion « climat » pour le cas
où les consommations sont relevées par factures ou mesures
Les facteurs de conversion sont exprimés en kilogramme de CO2 par kilowattheure PCI d'énergie finale.
Tous usages |
|
| Bois, biomasse Gaz naturel Fioul domestique Charbon Gaz propane ou butane Autres combustibles fossiles Electricité d'origine renouvelable utilisée dans le bâtiment Electricité (hors électricité d'origine renouvelable utilisée dans le bâtiment ) |
0,013 |
0,234 |
|
0,300 |
|
0,384 |
|
0,274 |
|
0,320 |
|
0 |
|
0,084 |
Pour les réseaux de chaleur ou de froid, pour lesquels la dispersion du contenu CO2 est importante, la valeur à retenir est précisée à l'annexe 7.
Pour figurer dans cette annexe, les gestionnaires de réseaux doivent faire parvenir le contenu en CO2 de leur réseau et les justifications correspondantes à la direction générale de l'énergie et des matières premières (DGEMP).
Pour les réseaux de chaleur ou de froid qui ne figurent pas à l'annexe 7, la valeur est fixée par défaut au contenu CO2 le plus élevé, celui du charbon.
A N N E X E 4.2
ÉCHELLE DES ÉMISSIONS DE GAZ À EFFET DE SERRE
4.2.1. Généralités
4.2.1 a. Cas des bâtiments à usage principal d'habitation
Pour les bâtiments à usage principal d'habitation, le classement de la quantité totale d'émissions de gaz à effet de serre se fait dans une échelle de sept classes, appelée « étiquette climat ». La quantité d'émissions est croissante, partant de la classe A (la plus performante, figurant en mauve clair), à la classe G (la moins performante, figurant en mauve foncé).
L'étiquette climat doit être conforme au modèle suivant :

Les couleurs qui doivent être utilisées pour l'impression de l'étiquette énergie sont les suivantes :
- pour la flèche représentant la classe A : 5 % cyan, 10 % magenta, 0 % jaune, 10 % noir ;
- pour la flèche représentant la classe B : 10 % cyan, 35 % magenta, 0 % jaune, 10 % noir ;
- pour la flèche représentant la classe C : 15 % cyan, 50 % magenta, 0 % jaune, 15 % noir ;
- pour la flèche représentant la classe D : 20 % cyan, 65 % magenta, 0 % jaune, 15 % noir ;
- pour la flèche représentant la classe E : 20 % cyan, 80 % magenta, 0 % jaune, 15 % noir ;
- pour la flèche représentant la classe F : 25 % cyan, 95 % magenta, 0 % jaune, 20 % noir ;
- pour la flèche représentant la classe G : 35 % cyan, 100 % magenta, 0 % jaune, 20 % noir ;
- pour le contenu : 100 % cyan, 0 % magenta, 70 % jaune, 0 % noir.
Tout le texte doit être rédigé en caractères noirs, à l'exception du curseur situant le niveau d'émissions dans l'échelle et du texte figurant en classe G, lesquels sont écrits en blanc. Le curseur comporte du texte blanc sur fond noir.
Le fond de l'étiquette doit être blanc.
Une reproduction lisible en noir et blanc de l'étiquette peut être produite, ainsi que de l'ensemble du diagnostic.
L'étiquette climat mentionne les limites de classes comme définies au paragraphe 4.2.2 a.
4.2.1 b. Cas des bâtiments à usage principal autre que d'habitation
Pour les bâtiments à usage principal autre que d'habitation, le classement de la quantité totale d'émissions de gaz à effet de serre se fait dans une échelle de neuf classes, appelée « étiquette climat ». La quantité d'émissions est croissante, partant de la classe A (la plus performante, figurant en mauve clair), à la classe I (la moins performante, figurant en gris foncé).
L'étiquette climat doit être conforme au modèle suivant :

Les couleurs qui doivent être utilisées pour l'impression de l'étiquette énergie sont les suivantes :
- pour la flèche représentant la classe A : 5 % cyan, 10 % magenta, 0 % jaune, 10 % noir ;
- pour la flèche représentant la classe B : 10 % cyan, 35 % magenta, 0 % jaune, 10 % noir ;
- pour la flèche représentant la classe C : 15 % cyan, 50 % magenta, 0 % jaune, 15 % noir ;
- pour la flèche représentant la classe D : 20 % cyan, 65 % magenta, 0 % jaune, 15 % noir ;
- pour la flèche représentant la classe E : 20 % cyan, 80 % magenta, 0 % jaune, 15 % noir ;
- pour la flèche représentant la classe F : 25 % cyan, 95 % magenta, 0 % jaune, 20 % noir ;
- pour la flèche représentant la classe G : 35 % cyan, 100 % magenta, 0 % jaune, 20 % noir ;
- pour la flèche représentant la classe H : 50 % noir ;
- pour la flèche représentant la classe I : 85 % noir ;
- pour le contenu : 100 % cyan, 0 % magenta, 70 % jaune, 0 % noir.
Tout le texte doit être rédigé en caractères noirs, à l'exception du curseur situant le niveau d'émissions dans l'échelle et du texte figurant en classes G, H et I, lesquels sont écrits en blanc. Le curseur comporte du texte blanc sur fond noir.
Le fond de l'étiquette doit être blanc.
Une reproduction lisible en noir et blanc de l'étiquette peut être produite, ainsi que de l'ensemble du diagnostic.
L'étiquette climat mentionne les limites de classes comme définies au paragraphe 4.2.2 b.
4.2.2. Limites des classes de l'étiquette climat
a) Pour les bâtiments à usage principal d'habitation
La structuration des classes de l'étiquette climat est la suivante :
Désignation de la classe |
Plage de consommation (kWh/m².an) |
A |
inférieur ou égal à 5 |
B |
de 6 à 10 |
C |
de 11 à 20 |
D |
de 21 à 35 |
E |
de 36 à 55 |
F |
de 56 à 80 |
G |
strictement supérieur à 80 |
b) Pour les bâtiments à usage principal autre que d'habitation
La structuration des classes de l'étiquette climat est la suivante :
Désignation de la classe |
Plage de consommation (kWh/m².an) |
A |
inférieur ou égal à 5 |
B |
de 6 à 10 |
C |
de 11 à 20 |
D |
de 21 à 35 |
E |
de 36 à 55 |
F |
de 56 à 80 |
G |
de 81 à 110 |
H |
de 110 à 145 |
I |
strictement supérieur à 145 |
A N N E X E 5
BASE DE PRIX POUR L'ÉVALUATION CONVENTIONNELLE
DES FRAIS ANNUELS DE CONSOMMATION D'ÉNERGIE
Pour le modèle 6.1 de diagnostic mentionné en annexe 6, la mention de la date de la version de l'arrêté utilisé pour les prix de l'énergie sera portée à côté de l'estimation des frais annuels d'énergie sur le diagnostic de performance énergétique.
Les frais annuels de la consommation d'énergie calculée sont, pour chaque type d'énergie utilisée pour le chauffage, la production d'eau chaude sanitaire et le refroidissement des locaux, le produit de la quantité d'énergie finale nécessaire par le prix du kWh auquel est ajouté le coût de l'abonnement éventuel en fonction des classes de consommation et selon les barèmes figurant dans le tableau suivant. Ces frais sont estimés en faisant abstraction des autres usages de certaines énergies.
Tableau des tarifs des énergies (15 août 2006)
ABONNEMENT (en euros TTC) |
PRIX DU kWh (énergie finale) (en cemtimes d'euro TTC) Tarif au 15 août 2006 |
|
Fioul Propane (en kWh PCS) Electricité (les consommations indiquées concernent le chauffage, la production d'eau chaude sanitaire et le refroidissement) : |
25,32
|
6,82 |
| * Estimation avec une répartition forfaitaire de la consommation entre heures pleines et heures creuses (respectivement 60% et 40%) pour le chauffage et une production d'eau chaude sanitaire effctuée intégralement en heures creuses | ||
A N N E X E 6
MODÈLES DE PRÉSENTATION DU DIAGNOSTIC
DE PERFORMANCE ÉNERGÉTIQUE
Modèle 6.1 :
Pour les bâtiments à usage principal d'habitation pour lesquels les quantités d'énergie sont évaluées sur la base de consommations estimées (consommation conventionnelle).
Modèle 6.2 :
Pour les bâtiments à usage principal d'habitation pour lesquels les quantités d'énergie sont évaluées sur la base de consommations réelles (consommations estimées au moyen de factures d'énergie, de décomptes de charges ou de relevés de comptages).
Modèle 6.3 :
Pour les bâtiments à usage autre que d'habitation (par exemple : tertiaire, bureaux, commerces ...).
Modèle 6.1 :
Pour les bâtiments à usage principal d'habitation pour lesquels les quantités d'énergie sont évaluées sur la base de consommations estimées (consommation conventionnelle).




Modèle 6.2 :
Pour les bâtiments à usage principal d'habitation pour lesquels les quantités d'énergie sont évaluées sur la base de consommations réelles (consommations estimées au moyen de factures d'énergie, de décomptes de charges ou de relevés de comptages).




Modèle 6.3 :
Pour les bâtiments à usage autre que d'habitation (par exemple : tertiaire, bureaux, commerces...).




A N N E X E 7
ÉVALUATION DU CONTENU EN CO2 DES RÉSEAUX DE CHALEUR ET DE FROID
(Une liste relative au contenu en CO2 des réseaux de chaleur qui en adresseront la demande sera publiée ultérieurement.)